Modernization of Library Elevator # 3
To Start April 13, 2011
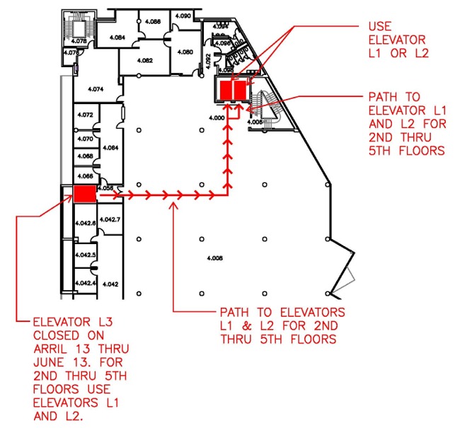
Facilities Management is scheduled to modernize elevator # 3 in the Library at the Long Campus beginning April 13, 2011. Downtime for this elevator is estimated at approximately two months and will affect all five floors serviced by the L3 elevator. The modernization includes a complete overhaul of mechanical/electrical systems, replacement of cabling, and reconditioning of the elevator cabin. This work will be completed on approximately June 13, 2011.
The diagram below shows the location of alternate Library elevators L1 and L2 that can be used by faculty, students and staff to access upper floors.
Please pass this information to all who might be affected by this outage. If anyone has further questions or concerns about this outage, please contact Dwight Beckingham at 542-6195.

Raymond Martin
Assistant Vice President for Facilities
